Accurate and timely construction estimating services are critical to the success of a
project
for
subcontractors
architectural engineering firms and general contractors from bidding to preparing budgets
quality
control of
bids and
procurement outworld estimating. We’d pride ourselves on providing unbiased, accurate, and
clear
estimates
that stand
with the material takeoff. A material takeoff must be accurate comprehensive and easy to
understand.
That’s
why we
provide quick and accurate estimation services all over the Australia.
Autodesk is a leading software company providing tools for building information modeling (BIM), design, and construction. Autodesk products, such as AutoCAD and Revit, enable precise design, visualization, and documentation of construction projects, improving accuracy and collaboration.
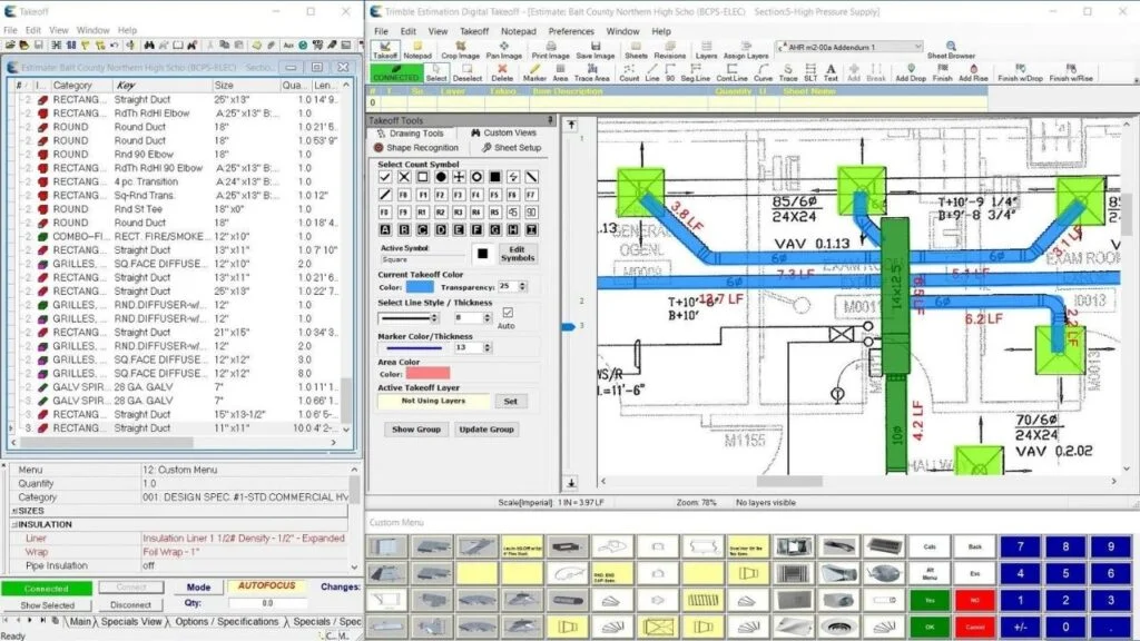
AccuBid is a specialized estimating software for electrical and mechanical contractors. It offers features like detailed material and labor cost tracking, bid management, and project tracking, ensuring accurate and efficient estimation processes for MEP (Mechanical, Electrical, Plumbing) systems.
Planswift is a powerful digital takeoff and estimating software that allows users to measure, quantify, and price construction projects directly from digital plans. Its user-friendly interface helps contractors quickly create accurate estimates and streamline the bidding process.
The residential drywall takeoff provides an accurate breakdown of material quantities and costs. Detailed itemization ensures transparency and precision, aiding in confident decision-making. This thorough approach reflects expertise in drywall requirements and current market trends.
On-Screen Takeoff (OST) is a digital takeoff software that simplifies the process of measuring and quantifying materials directly from digital blueprints. It improves accuracy and efficiency in creating estimates, making it easier to manage project costs and timelines. !
Archdesk is a comprehensive construction management software designed to streamline various aspects of construction projects, from estimation to project delivery. It offers tools for project planning, resource management, financial tracking, and collaboration, ensuring efficient and organized project execution.
We have become well-known as one of the most thorough and effective construction estimating consultancies in the industry because of our detail-oriented and qualified team. We carefully select estimators and managers who have experience working for reputable contracting companies, and we then thoroughly train them under our requirements.
Contact Us
We are a firm of architects and developers based in London and I found this company amazing to deal with. Very quick, efficient and on budget. The director was knowledgeable and a pleasure to deal with. Will definitely continue to work with them.
The company has been pricing jobs for tendering in the construction industry! I have found them to be very helpful with lots of advice to make us competitive in the market! Highly recommended
We are a firm of architects and developers based in London and I found this company amazing to deal with. Very quick, efficient and on budget. The director was knowledgeable and a pleasure to deal with. Will definitely continue to work with them..